栃木県佐野市の不動産・賃貸物件なら
住まいさがしのベストパートナー、安心不動産へ
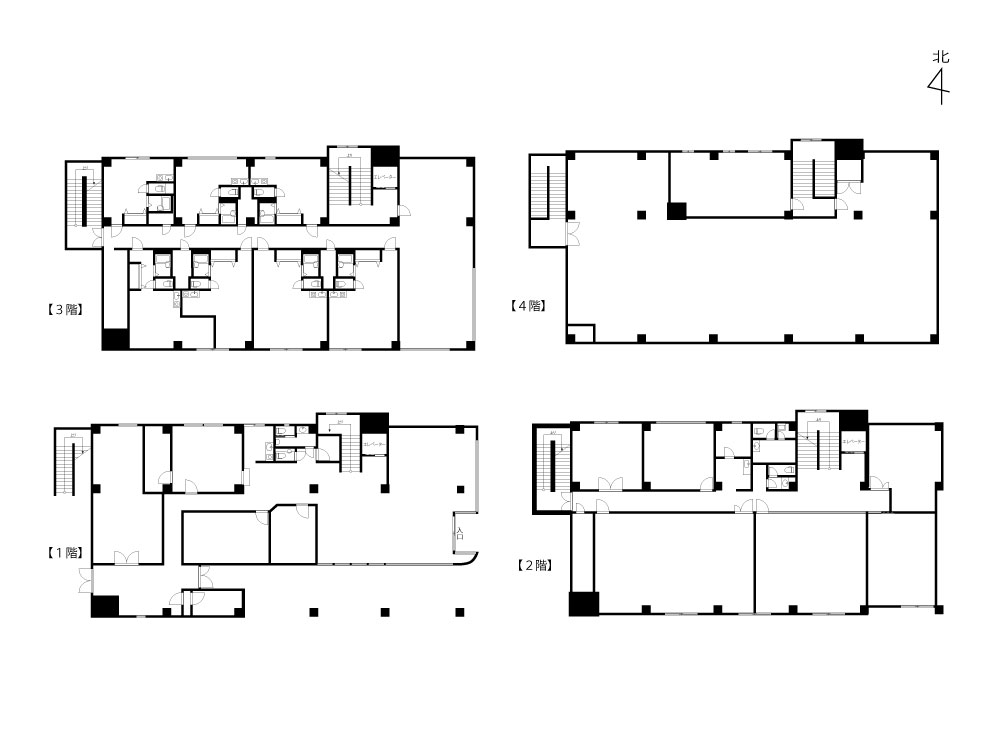
浅沼町 売リビル
| 所在地 | 佐野市浅沼町411 |
|---|---|
| 物件種別 | アパート・ビルの一棟売り |
| 価格 | 8800万円 |
| 間取り | 4LDK以上 |
| 地目 | 宅地 |
| 現状 | いつでもご案内可能です!! |
| 築年数 | 1973年9月(2017年1月に大規模改修済) |
| 構造 | 鉄筋コンクリート造陸屋根4階建 |
| 土地面積 | 1187.98㎡(359.36坪) |
| 建物床面積 | 1206.53㎡(364.97坪) |
| 接道状況 | 東側18m公道 |
| 設備 | 公営水道・公共下水・プロパンガス |
| 都市計画 | 市街化区域 |
| 用途地域 | 第二種住居地域 |
| 建ぺい率 | 60% |
| 容積率 | 200% |
| 取引態様 | 仲介 |
| 備考 |
佐野郵便局すぐ南側の売りビルです!! 産業道路沿いの好立地物件!! 駐車場や車庫も完備! 詳しい資料をお渡しできますのでお気軽にお問合せください!! |
※地図の表示は実際とは多少異なっているケースがございます。予めご容赦をお願いいたします。